Rooms@Rentals.DancingCoyote.com

Trail's End Suite

At the end of a dusty trail, there's no better place to lay your head after a hard day's work.

  • 24/7/365 WiFi
  • Roku TV
  • Queen Size Bed
  • Shower
  • Iron & Ironing Board
  • Non-Smoking

TRAIL'S END SUITE OVERVIEW

The perfect place to rest your head after a long day at work! The 308 square foot suite, with its own private entrance, is fully furnished and features common area privileges, many amenities, and all utilities except personal phone landline and/or cell phone service, nor in-room Roku TV premium subscriptions (which can be purchased at additional monthly costs). The Farmhouse is not a party house. It is a year-round, owner-occupied private home offering rooms to discerning renters who want a very comfortable, safe, secure, relaxing, quiet, and hassle-free place to live.

Renting Dancing Coyote Farm's Trail's End Suite is ideal for all types of renters*, including: on-contract traveling nurses, interns and other medical or business professionals; those looking for the flexibility of short term rentals; extended-stay travelers visiting family & friends in Acton and Agua Dulce who don't have enough room to accommodate their guests; and extended-stay tourists. Trail's End is very comfortable, well-furnished, and full of premium quality amenities, and best of all... the all-inclusive rental price is very affordable, fitting just about anybody's budget! Use the "CHECK ROOM AVAILABILITY" form at right to find out if the Suite is available for rent!

READ MORE ABOUT THE FARM AND TRAIL'S END SUITE. Continue reading below for more information about the Farm, the home's common areas, Trail's End Suite features and amenities, preferred renters, activities, and getting around.

TRAIL'S END SUITE RENTAL PRICES*

Month-to-Month Rentals
Couples Okay
from $995.00/month ALL INCLUSIVE
2nd person additional cost from $195/per mo.
Security Deposit: $1,250.00
13-Week Contract Rentals
Flat Rate
Couples Okay
from $3,233.75 ALL INCLUSIVE
2nd person additional cost from $195/per mo.
Security Deposit: $1,250.00
Other Term Contract Rentals
Flat Rate
Couples Okay
Flat Rate ALL INCLUSIVE Price Upon Request
2nd person additional cost from $195/per mo.
Security Deposit: $1,250.00

*Minimum Stay. 1 Month (30 nights). Maximum Stay. 12 continuous months, or more depending upon owner's review of renter's DCF rental history.

HOUSE RULES To maximize the enjoyment of your room rental at Dancing Coyote Farm, please read and understand all of our House Rules before submitting your Rental Application.

REQUIRED DOCUMENTS All Rental Applicants must provide the following documents and Proof of Renter's Insurance (upon acceptance of rental application and prior to move-in date). To find out more about renting a room at Dancing Coyote Farm, click HERE.

  • Rental Application
  • References
  • Credit Report (Paid for by Applicant; not refundable)
  • Month-to-Month Rentals: Verification of Employment Letter
  • Contract Rentals: Photocopy of Employment Contract
  • REQUIRED: Renter's Insurance

Use the "CHECK ROOM AVAILABILITY" form at right to find out if the Suite is available for rent!


HOME STYLE. Rustic-style, custom-built farmhouse is situated on four acres in a beautiful rural, country setting. This private, retreat-like home features very comfortable furniture, high-end appliances, fixtures, and amenities in the common areas as well as in each rental room. Property is located 1/2-mile off paved road on a well-maintained dirt road.

VIEW TYPE. Panoramic mountain views; Property located in the low Sierra foothills, high desert region of the Antelope Valley in Southern California.

FOOD, BEVERAGES AND MEALS. No meals are provided by Dancing Coyote Farm. Renters have full, shared-use of the Chef's Kitchen to prepare their own meals. Each renter is assigned a personal kitchen cabinet for dry goods storage and a personal section in the keeping and freezer compartments of the kitchen's refrigerator.

PREFERRED RENTERS. Mature, solid medical, service, and business professionals, male and female. Couples okay. Unfortunately, the Farmhouse and its rental rooms are not suitable for children of any age and we do not allow pets at this time. Thank you for understanding.

COMMON AREAS

All Renters will enjoy use of the Farmhouse's common areas, features and amenities listed below.

  • Open concept Great Room for relaxing, reading, conversation, and watching TV (DVD player available).
  • Single level home, no stairs
  • Cathedral and vaulted ceilings
  • Cozy wood burning stove
  • Family-style, sit-down dining area
  • Dramatic wrap-around covered deck for lounging and dining
  • Eat at bar/counter
  • 55" Roku TV in Great Room with Amazon
    Prime Video, Paramount+ (CBS), Peacock (NBC), Discovery+, PBS, & many free channels
  • Self-prep coffee/beverage bar with coffee makers, electric tea kettle, sink & wine frig.
  • Outdoor picnic area
  • Four-acre property. Feel free to explore!

ESSENTIAL AMENITIES

  • Landline - In the Farmhouse kitchen; short, local & emergency calls only
  • Cell Service - Yes. But, can be spotty.
  • Wifi - Yes. 24/7/365 Broadband
  • Heating - Yes. Central heating
  • AC - Yes. Whole house
  • In-Room Roku TV – Roku Free Channels; Add your favorite premium subscriptions for additional monthly costs
  • Parking; 1 uncovered outdoor space
  • All utilities except personal phone landline and/or cell service.

MORE AMENITIES

  • Charcoal BBQ grill & utensils
  • Laundry with washer and dryer; outside clothesline; (detergent, etc. not included)
  • Iron and ironing board
  • Personal shelf-stable food & dry goods storage cabinet in kitchen. Assigned.
  • Personal storage in Refrigerator - keeping and freezer areas. Assigned.
  • Pots, pans, dishes, flatware, utensils
  • Glasses, stemware, pitchers, coffee cups
  • Blender, Cuisinart, waffle iron, counter & hand mixers, etc.
  • Plastic storage containers for leftovers
  • 6-Burner cooktop, double ovens, warming drawer, sink, microwave, dishwasher, etc.
  • Whole home interior fire sprinkler system
  • Fire/smoke detectors
  • Fire extinguishers

A FEW EXTRA THINGS

  • Pod, drip and French press coffee makers, espresso machine, coffee bean grinder
  • Cold, filtered refrigerator water dispenser
  • Ice cube maker
  • First aid kit

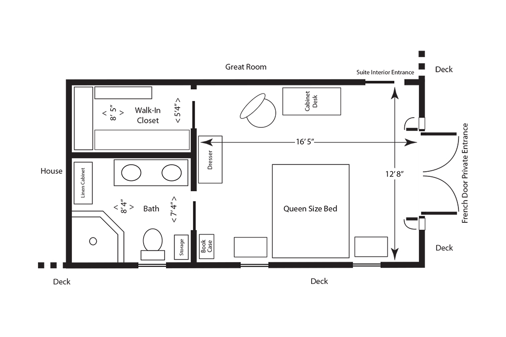
Sun, Heat, Rain, Hail, Snow, Cold... Our rent included features and amenities will keep you smiling! The 308 square foot, self-contained Trail's End Suite – which can sleep two – is fully furnished and includes the following highlights and amenities.

  • Private, secure double French door exterior entrance to suite from wrap-around deck
  • Access via home's front door with interior, locking door to suite
  • Large walk-in closet; hangers
  • 3-Piece bathroom with heated floor
  • Queen-size 4-poster bed, 2 nightstands, 2 lamps
  • 6-Drawer dresser with mirror
  • Sitting area with easy chair and lamp
  • Working desk with reading lamp
  • Clock/Radio in room
  • Bookcase
  • Central heat and air-conditioning
  • Large, remote controlled ceiling fan
  • In-suite attic storage for your luggage
  • All Bed linens, bed pillows, and blankets included
  • All Wash cloths, hand towels and bath towels included

Getting Around

There isn't any public transportation here. Approximate costs for ride share/shuttle rates: Local LAX airport pick-up available for $150.00+/- per person, each way. Burbank Airport $75.00+/- per person, each way. Renters will have to make their own arrangements with the shuttle services. The closest, full service train station is Santa Clarita; shuttle fee approx. $45.00 per person, each way. At this time there isn't any Uber or Lyft service in the Acton/Agua Dulce area that we know of. Prices are approximate and change frequently.

Driving to, or departing from, Dancing Coyote Farm. A few destinations that are good to know about. All miles and times are approximate.

  • Easy on/off Antelope Valley Freeway (14) access – 1.25 miles
  • Acton, CA – 7 miles
  • Agua Dulce, CA – 9 miles
  • Palmdale, CA – 16 miles
  • Lancaster, CA – 24 miles
  • Santa Clarita (also known as Canyon Country), CA – 18 miles
  • Valencia, CA – 27 miles
  • San Fernando Valley, CA – 29 miles
  • Downtown L.A., CA – 42 miles
  • Los Angeles International Airport – 1.5 hours by car without traffic
  • Burbank/Glendale Airport – 45-50 minutes by car without traffic
  • Vasquez Rocks Natural Area Park – 11 miles
  • Magic Mountain Park – 29 miles
  • Universal Studios – 1 hour by car without traffic
  • Skiing/Wrightwood, Snow Summit – 54 miles

  • Hiking and biking. Bring your bicycle! Storage for bikes available in basement
  • At night, sit outside on the wrap around deck and gaze up at the endless stars
  • Yoga - Pack your mat, pick a spot, exercise or meditate!
  • Boardgames & Cards: checkers, chess, backgammon, parcheesi, cribbage, monopoly; uno and poker playing cards, poker chips

Wildlife Viewing. Use our wildlife guidebooks on the property and make friends with the variety of colorful birds and shy critters that call our farm home. We're striving toward restoring the land to its original diverse form while trying to support our food needs. Squirrels, raccoons, and rabbits forage our grounds while California quail, bluebirds, woodpeckers, red tail hawks, and more, soar overhead.

You'll probably even catch sight of coyotes and bobcats while here — but, keep your distance... don't try to make friends with them!! Our, "We've sited it!" list keeps growing, as do the flora we keep adding to the property. A MUST: This is true country living, always keep your eyes open when you're hiking or biking, especially at dawn and dusk.

NOTE: You'll want to have some warm clothes year 'round. The Farmhouse is situated at about 3,445 ft. elevation. Nights at anytime of the year can be chilly or down right cold! During winter we do have snow, usually just a couple of inches — boy, it sure is beautiful out here!


Reviews

Leave a Review
No reviews yet.

Check Room Availability

Amenity Highlights

  • Free Wifi
  • Roku TV – Roku Free Channels
  • USB Charging Hub
  •   Kitchen Beverage Bar
  • Deck for Lounging
  •   Kitchen Facilities
  •   Laundry Facilities*
  • Parking, 1 Outdoor Space

Restrictions

  • No Wheelchair Access
  • No Pets
  • No Smoking/Vaping Property
  •    No Drugs Property
  •  No Parties or Events
  • Read Complete House Rules

Activities

  • Hiking
  • Biking
  • Nature Photography
  •   Wineries
  •   Restaurants
  •   Family Entertainment & Activities

Need info? Email us!

Rooms@Rentals.DancingCoyote.com

HOURS
Monday – Friday 10:00am to 5:00pm
Saturday – 10:00am to 2:30pm
Sunday – Not Available